Kömmerling

Nr. Profilname Art.-Nr. Detailzeichnungen
1 Kömmerling 76 Kunststofftuer 90024-001
2 Kömmerling 88 Kunststofftuer 90024-002
3 Kömmerling 76 Kunststofftuer MD 90024-003

Schüco

Nr. Profilname Art.-Nr. Detailzeichnungen
1 Schüco ADS 70 HI Alutuer 90124-001
2 Schüco ADS 75 SI Alutuer 90124-002
3 Schüco AD UP 90 SI Alutuer 90124-003
4 Schüco Living Kunststofftuer 90105-001
5 Schüco CT 70 Kunststofftuer 90105-002
6 Schüco FocusIng 70 90105-003
7 Schüco ADS 75 HD Alutuer 90124-006

Gealan

Nr. Profilname Art.-Nr. Detailzeichnungen
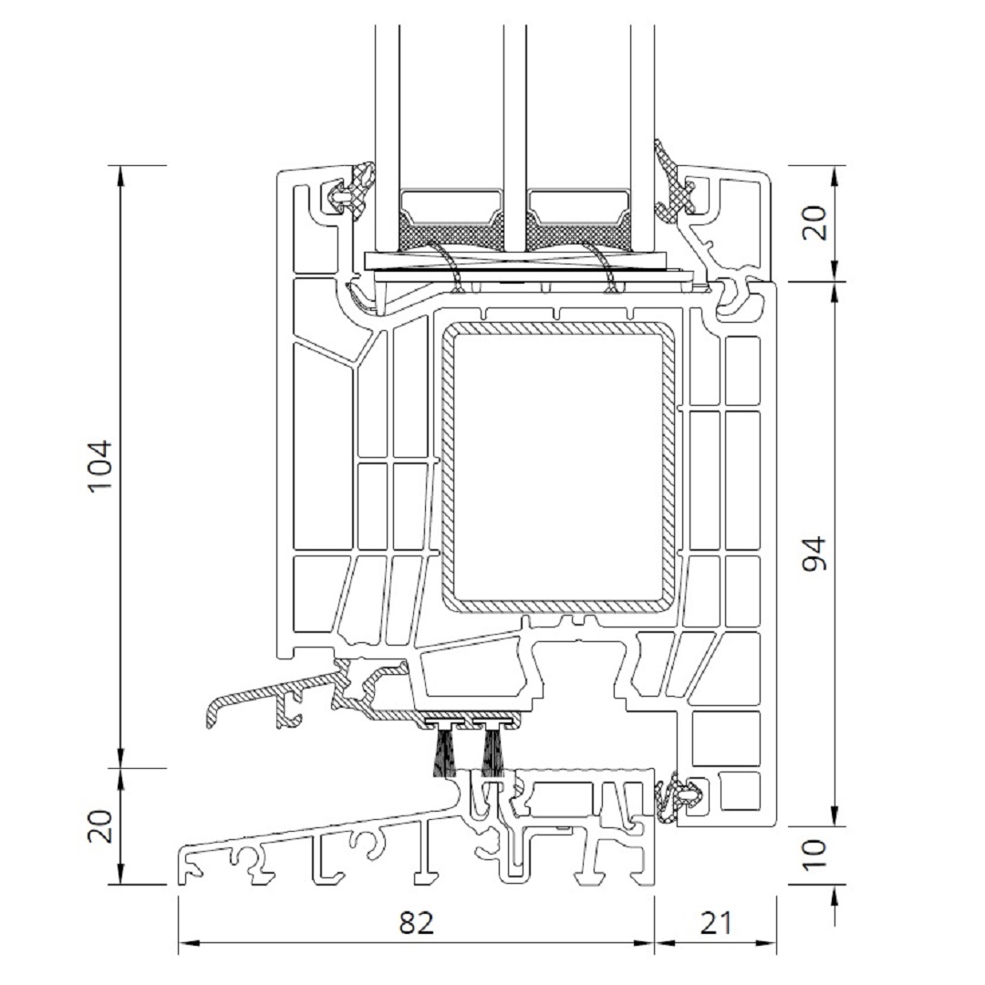
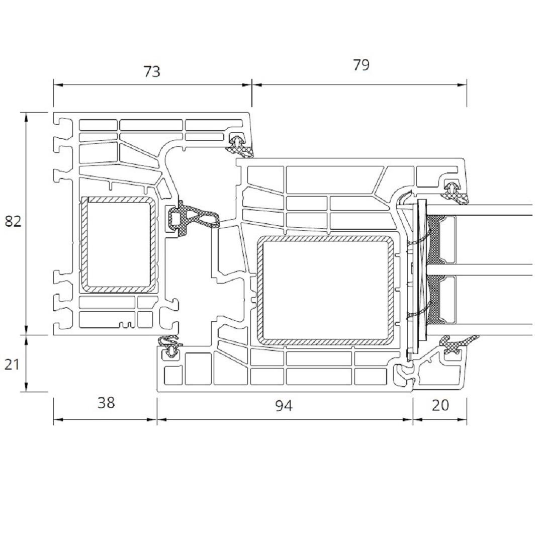
1 Gealan S8000 Kunststofftuer 90032-001
WIDURO

Gealan Kunststoff Nebeneingangstür Profilsystem: S8000
Gealan Kunststoff Nebeneingangstür Profilsystem: S8000

WIDURO

Gealan Kunststoff Nebeneingangstür Profilsystem: S8000
Gealan Kunststoff Nebeneingangstür Profilsystem: S8000

WIDURO

Gealan Kunststoff Nebeneingangstür Profilsystem: S8000
Gealan Kunststoff Nebeneingangstür Profilsystem: S8000

2 Gealan S9000 Kunststofftuer 90032-002
WIDURO

Gealan Kunststoff Nebeneingangstür Profilsystem: S9000
Gealan Kunststoff Nebeneingangstür Profilsystem: S9000

WIDURO

Gealan Kunststoff Nebeneingangstür Profilsystem: S9000
Gealan Kunststoff Nebeneingangstür Profilsystem: S9000

WIDURO

Gealan Kunststoff Nebeneingangstür Profilsystem: S9000
Gealan Kunststoff Nebeneingangstür Profilsystem: S9000

3 Gealan Linear Kunststofftuer 90032-003
WIDURO

Gealan Kunststoff Nebeneingangstür Profilsystem: Linear
Gealan Kunststoff Nebeneingangstür Profilsystem: Linear

WIDURO

Gealan Kunststoff Nebeneingangstür Profilsystem: Linear
Gealan Kunststoff Nebeneingangstür Profilsystem: Linear

WIDURO

Gealan Kunststoff Nebeneingangstür Profilsystem: Linear
Gealan Kunststoff Nebeneingangstür Profilsystem: Linear

Drutex

Nr. Profilname Art.-Nr. Detailzeichnungen
1 Drutex Iglo 5 Kunststofftuer 90031-001
WIDURO

Kunststoff Nebeneingangstür Profilsystem: Iglo 5
Kunststoff Nebeneingangstür Profilsystem: Iglo 5

WIDURO

Kunststoff Nebeneingangstür Profilsystem: Iglo 5
Kunststoff Nebeneingangstür Profilsystem: Iglo 5

WIDURO

Kunststoff Nebeneingangstür Profilsystem: Iglo 5
Kunststoff Nebeneingangstür Profilsystem: Iglo 5

2 Drutex Iglo Energy Kunststofftuer 90031-002
WIDURO

Kunststoff Nebeneingangstür Profilsystem: Iglo Energy
Kunststoff Nebeneingangstür Profilsystem: Iglo Energy

WIDURO

Kunststoff Nebeneingangstür Profilsystem: Iglo Energy
Kunststoff Nebeneingangstür Profilsystem: Iglo Energy

WIDURO

Kunststoff Nebeneingangstür Profilsystem: Iglo Energy
Kunststoff Nebeneingangstür Profilsystem: Iglo Energy

3 Drutex MB-45 Aluminiumtuer 90035-001
WIDURO

Nebeneingangstür Profilsystem: MB-45
Nebeneingangstür Profilsystem: MB-45

WIDURO

Nebeneingangstür Profilsystem: MB-45
Nebeneingangstür Profilsystem: MB-45

WIDURO

Nebeneingangstür Profilsystem: MB-45
Nebeneingangstür Profilsystem: MB-45

4 Drutex MB-70 Aluminiumtuer 90035-002
WIDURO

Nebeneingangstür Profilsystem: MB-70
Nebeneingangstür Profilsystem: MB-70

WIDURO

Nebeneingangstür Profilsystem: MB-70
Nebeneingangstür Profilsystem: MB-70

WIDURO

Nebeneingangstür Profilsystem: MB-70
Nebeneingangstür Profilsystem: MB-70

WIDURO

Nebeneingangstür Profilsystem: MB-70
Nebeneingangstür Profilsystem: MB-70

5 Drutex MB-70 Hi Aluminiumtuer 90035-003
WIDURO

Nebeneingangstür Profilsystem: MB-70 HI
Nebeneingangstür Profilsystem: MB-70 HI

WIDURO

Nebeneingangstür Profilsystem: MB-70 HI
Nebeneingangstür Profilsystem: MB-70 HI

WIDURO

Nebeneingangstür Profilsystem: MB-70 HI
Nebeneingangstür Profilsystem: MB-70 HI

WIDURO

Nebeneingangstür Profilsystem: MB-70 HI
Nebeneingangstür Profilsystem: MB-70 HI

6 Drutex MB-86N SI Alutuer 90035-004
WIDURO

Nebeneingangstür Profilsystem: MB-86N SI
Nebeneingangstür Profilsystem: MB-86N SI

WIDURO

Nebeneingangstür Profilsystem: MB-86N SI
Nebeneingangstür Profilsystem: MB-86N SI

WIDURO

Nebeneingangstür Profilsystem: MB-86N SI
Nebeneingangstür Profilsystem: MB-86N SI

WIDURO

Nebeneingangstür Profilsystem: MB-86N SI
Nebeneingangstür Profilsystem: MB-86N SI

7 Drutex Softline 68 Holztuer 90036-001
WIDURO

Profilsystem: Softline 68 Kiefer
Profilsystem: Softline 68 Kiefer

WIDURO

Profilsystem: Softline 68 Kiefer
Profilsystem: Softline 68 Kiefer

WIDURO

Profilsystem: Softline 68 Kiefer
Profilsystem: Softline 68 Kiefer

8 Drutex Iglo Edge 90031-003
WIDURO

Kunststoff Nebeneingangstür Profilsystem: Iglo Edge
Kunststoff Nebeneingangstür Profilsystem: Iglo Edge

WIDURO

Kunststoff Nebeneingangstür Profilsystem: Iglo Edge
Kunststoff Nebeneingangstür Profilsystem: Iglo Edge

WIDURO

Kunststoff Nebeneingangstür Profilsystem: Iglo Edge
Kunststoff Nebeneingangstür Profilsystem: Iglo Edge

WIDURO

Kunststoff Nebeneingangstür Profilsystem: Iglo Edge
Kunststoff Nebeneingangstür Profilsystem: Iglo Edge

9 Drutex MB-79N SI Alutuer 90035-006
10 Drutex Softline 68 Holztuer 90036-002
WIDURO

Profilsystem: Softline 68 Meranti
Profilsystem: Softline 68 Meranti

WIDURO

Profilsystem: Softline 68 Meranti
Profilsystem: Softline 68 Meranti

WIDURO

Profilsystem: Softline 68 Meranti
Profilsystem: Softline 68 Meranti

Aluplast

Nr. Profilname Art.-Nr. Detailzeichnungen
1 Aluplast IDEAL Neo 76 Kunststofftuer 90033-001
2 Aluplast IDEAL 4000 Kunststofftuer 90033-002
3 Aluplast IDEAL 5000 Kunststofftuer 90033-003
4 Aluplast IDEAL 7000 Kunststofftuer 90033-004
5 Aluplast IDEAL 8000 Kunststofftuer 90033-005
6 Aluplast IDEAL Neo 76 Kunststofftuer 90033-006
WIDURO gewinnt beim German Brand Award 2025