Kömmerling

Nr. Profilname Art.-Nr. Detailzeichnungen
1 Kömmerling 76 Kunststofftuer 90113-001
2 Kömmerling 88 Kunststofftuer 90113-002
3 Kömmerling 76 Kunststofftuer 90113-003

Schüco

Nr. Profilname Art.-Nr. Detailzeichnungen
1 Schüco CT 70 Kunststofftuer 90112-002
2 Schüco Living Kunststofftuer 90112-001
3 Schüco ADS 70 HI Alutuer 90125-001
4 Schüco ADS 75 SI Alutuer 90125-002
5 Schüco AD UP 90 SI Alutuer 90125-003
6 Schüco Focusing Kunststofftuer 90112-003
7 Schüco ADS 75 HD Alutuer 90125-004

Gealan

Nr. Profilname Art.-Nr. Detailzeichnungen
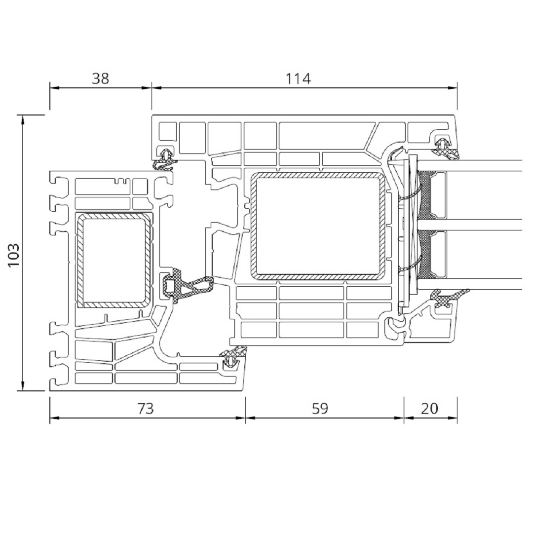
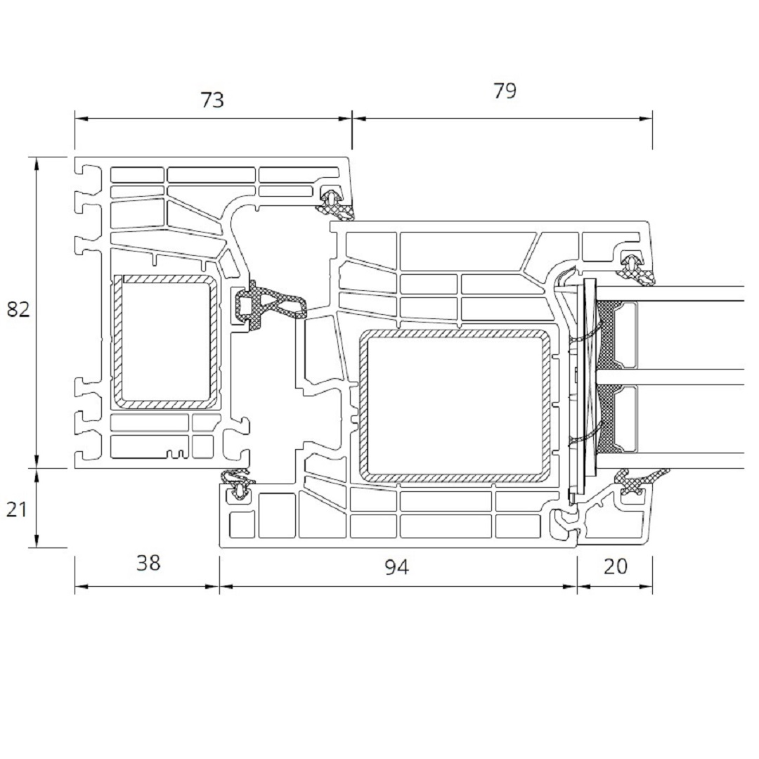
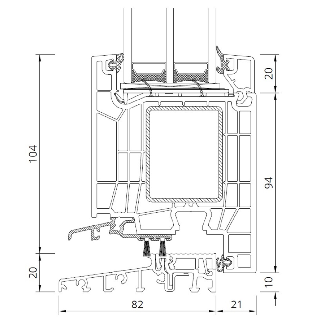
1 Gealan S8000 Kunststofftuer 90052-001
WIDURO

Gealan Kunststoff Haustür Profilsystem: S8000
Gealan Kunststoff Haustür Profilsystem: S8000

WIDURO

Gealan Kunststoff Haustür Profilsystem: S8000
Gealan Kunststoff Haustür Profilsystem: S8000

WIDURO

Gealan Kunststoff Haustür Profilsystem: S8000
Gealan Kunststoff Haustür Profilsystem: S8000

WIDURO

Gealan Kunststoff Haustür Profilsystem: S8000
Gealan Kunststoff Haustür Profilsystem: S8000

WIDURO

Gealan Kunststoff Haustür Profilsystem: S8000
Gealan Kunststoff Haustür Profilsystem: S8000

2 Gealan S9000 Kunststofftuer 90052-002
3 Gealan Linear Kunststofftuer 90052-003
WIDURO

Gealan Kunststoff Haustür Profilsystem: Linear
Gealan Kunststoff Haustür Profilsystem: Linear

WIDURO

Gealan Kunststoff Haustür Profilsystem: Linear
Gealan Kunststoff Haustür Profilsystem: Linear

WIDURO

Gealan Kunststoff Haustür Profilsystem: Linear
Gealan Kunststoff Haustür Profilsystem: Linear

WIDURO

Gealan Kunststoff Haustür Profilsystem: Linear
Gealan Kunststoff Haustür Profilsystem: Linear

Drutex

Nr. Profilname Art.-Nr. Detailzeichnungen
1 Drutex Iglo Energy Kunststofftuer 90051-001
WIDURO

Kunststoff Haustür Profilsystem: Iglo Energy
Kunststoff Haustür Profilsystem: Iglo Energy

WIDURO

Kunststoff Haustür Profilsystem: Iglo Energy
Kunststoff Haustür Profilsystem: Iglo Energy

WIDURO

Kunststoff Haustür Profilsystem: Iglo Energy
Kunststoff Haustür Profilsystem: Iglo Energy

2 Drutex Iglo 5 Kunststofftuer 90051-002
WIDURO

Kunststoff Haustür Profilsystem: Iglo 5
Kunststoff Haustür Profilsystem: Iglo 5

WIDURO

Kunststoff Haustür Profilsystem: Iglo 5
Kunststoff Haustür Profilsystem: Iglo 5

WIDURO

Kunststoff Haustür Profilsystem: Iglo 5
Kunststoff Haustür Profilsystem: Iglo 5

3 Drutex MB-70 Aluminiumtuer 90055-001
WIDURO

Haustür Profilsystem: MB-70
Haustür Profilsystem: MB-70

WIDURO

Haustür Profilsystem: MB-70
Haustür Profilsystem: MB-70

WIDURO

Haustür Profilsystem: MB-70
Haustür Profilsystem: MB-70

4 Drutex MB-70 Hi Aluminiumtuer 90055-002
WIDURO

Haustür Profilsystem: MB-70 Hi
Haustür Profilsystem: MB-70 Hi

WIDURO

Haustür Profilsystem: MB-70 Hi
Haustür Profilsystem: MB-70 Hi

WIDURO

Haustür Profilsystem: MB-70 Hi
Haustür Profilsystem: MB-70 Hi

WIDURO

Haustür Profilsystem: MB-70 Hi
Haustür Profilsystem: MB-70 Hi

5 Drutex MB-86N SI Alutuer 90055-003
WIDURO

Aluprof Aluminium Haustür Profilsystem: MB-86N SI mit Aufsatzfüllung (beidseitig Aluminium Haustür Profilsystem: MB-86N SI
Aluminium Haustür Profilsystem: MB-86N SI

WIDURO

Aluminium Haustür Profilsystem: MB-86N SI
Aluminium Haustür Profilsystem: MB-86N SI

WIDURO

Aluminium Haustür Profilsystem: MB-86N SI
Aluminium Haustür Profilsystem: MB-86N SI

WIDURO

Aluprof Aluminium Haustür Profilsystem: MB Aluminium Haustür Profilsystem: MB-86N SI
Aluminium Haustür Profilsystem: MB-86N SI

6 Drutex MB-86N SI Alutuer 90055-004
WIDURO

MB-86N SI mit Aufsatzfüllung (beidseitig)
MB-86N SI mit Aufsatzfüllung (beidseitig)

WIDURO

Profilsystem: MB-86N SI mit Aufsatzfüllung
Profilsystem: MB-86N SI mit Aufsatzfüllung

7 Drutex Softline-68 Holztuer Kiefer 90056-001
WIDURO

Haustür Profilsystem: Softline-68 Kiefer
Haustür Profilsystem: Softline-68 Kiefer

WIDURO

Haustür Profilsystem: Softline-68 Kiefer
Haustür Profilsystem: Softline-68 Kiefer

WIDURO

Haustür Profilsystem: Softline-68 Kiefer
Haustür Profilsystem: Softline-68 Kiefer

WIDURO

Haustür Profilsystem: Softline-68 Kiefer
Haustür Profilsystem: Softline-68 Kiefer

8 Drutex Softline-68 Holztuer Meranti 90056-002
WIDURO

Profilsystem: Softline-68 Meranti
Profilsystem: Softline-68 Meranti

WIDURO

Profilsystem: Softline-68 Meranti
Profilsystem: Softline-68 Meranti

WIDURO

Profilsystem: Softline-68 Meranti
Profilsystem: Softline-68 Meranti

WIDURO

Profilsystem: Softline-68 Meranti
Profilsystem: Softline-68 Meranti

9 Drutex D ART Line 90055-005
10 Drutex MB-79N SI Aluminiumtuer 90055-006
11 Drutex Iglo Edge Kunststofftuer 90051-003
WIDURO

Kunststoff Haustür Profilsystem: Iglo Edge
Kunststoff Haustür Profilsystem: Iglo Edge

WIDURO

Kunststoff Haustür Profilsystem: Iglo Edge
Kunststoff Haustür Profilsystem: Iglo Edge

WIDURO

Kunststoff Haustür Profilsystem: Iglo Edge
Kunststoff Haustür Profilsystem: Iglo Edge

WIDURO

Kunststoff Haustür Profilsystem: Iglo Edge
Kunststoff Haustür Profilsystem: Iglo Edge

12 Drutex MB-79N SI Aluminiumtuer 90055-007

Aluplast

Nr. Profilname Art.-Nr. Detailzeichnungen
1 Aluplast IDEAL 4000 Kunststofftuer 90053-002
2 Aluplast IDEAL 5000 Kunststofftuer 90053-003
3 Aluplast IDEAL 7000 Kunststofftuer 90053-004
4 Aluplast IDEAL 8000 Kunststofftuer 90053-005
5 Aluplast IDEAL Neo 76 Kunststofftuer 90053-001
WIDURO

Aluplast Kunststoff Haustür Profilsystem: IDEAL Neo 76 AD
Aluplast Kunststoff Haustür Profilsystem: IDEAL Neo 76 AD

WIDURO

Aluplast Kunststoff Haustür Profilsystem: IDEAL Neo 76 AD
Aluplast Kunststoff Haustür Profilsystem: IDEAL Neo 76 AD

WIDURO

Aluplast Kunststoff Haustür Profilsystem: IDEAL Neo 76 AD
Aluplast Kunststoff Haustür Profilsystem: IDEAL Neo 76 AD

6 Aluplast IDEAL Neo 76 Kunststofftuer 90053-007
WIDURO

Aluplast Kunststoff Haustür Profilsystem: IDEAL Neo 76 MD
Aluplast Kunststoff Haustür Profilsystem: IDEAL Neo 76 MD

WIDURO

Aluplast Kunststoff Haustür Profilsystem: IDEAL Neo 76 MD
Aluplast Kunststoff Haustür Profilsystem: IDEAL Neo 76 MD

WIDURO gewinnt beim German Brand Award 2025